| TYPE: | SYNAGOGUE, PROPOSAL |
| SIZE: | N/A |
| LOCATION: | ASUNCIÓN, PARAGUAY |
| TEAM: | GABRIELA ANKER, AARON LEPPANEN, CAROLINE DIEDEN, SOFIA CHÁVEZ, GABRIELA VALDEZ MENA |
| YEAR: | 2017 |
| STATUS: | PROPOSAL |
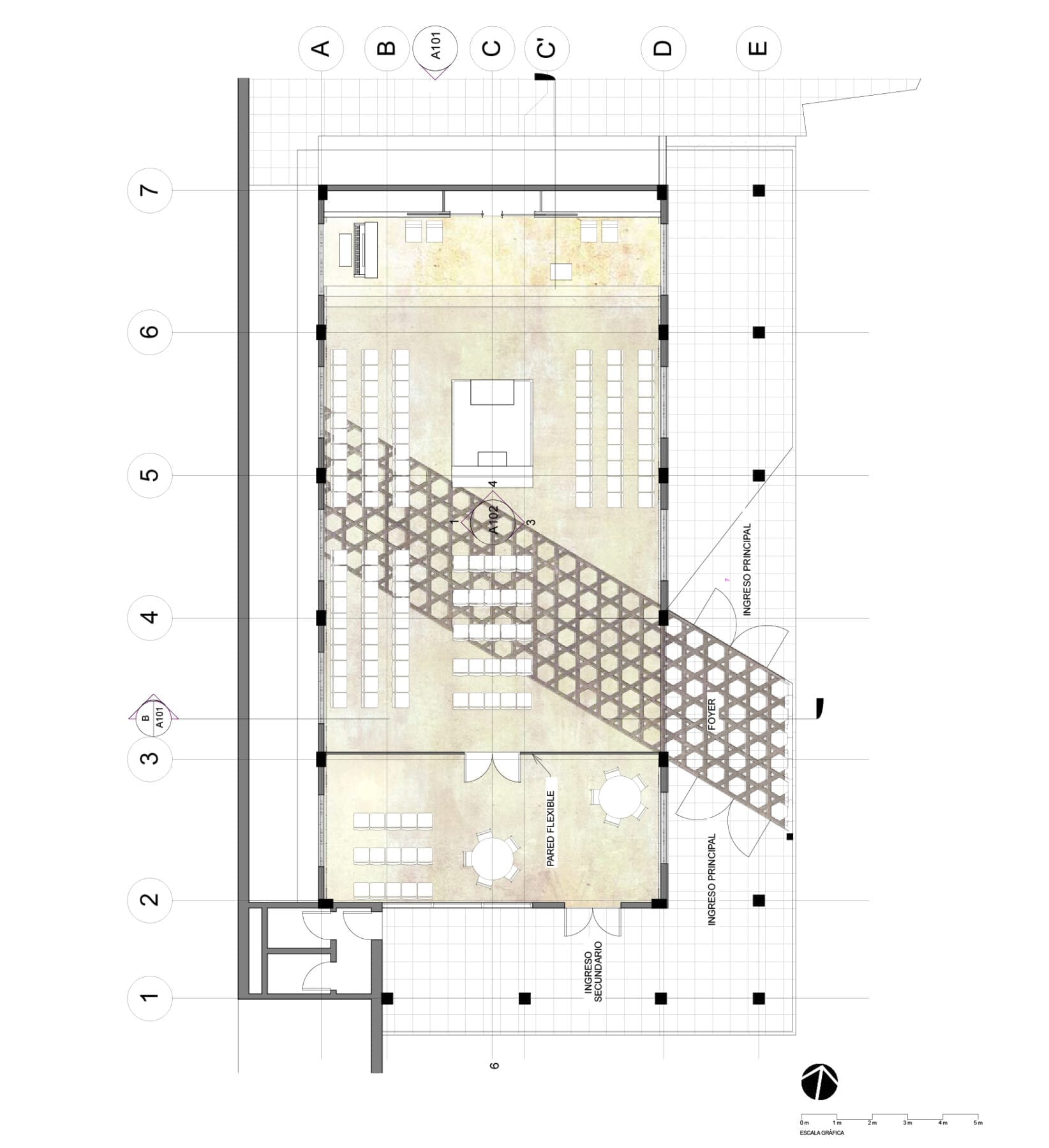
The proposal takes inspiration from pattern creation and its application on surface.
The circulation of the synagogue allows for the experience the space created with the shade that becomes a direct product of the pattern that drives the design.




